Top.Mail.Ru

Большая Черкизовская ул., д. 22, к. 4

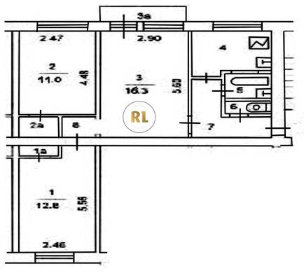
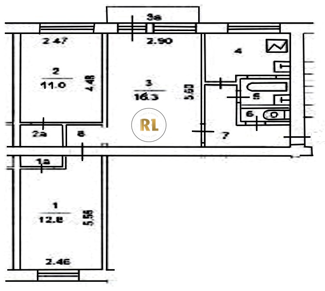
База каталог, Кол-во подъездов: 3, I-511, Москва, Преображенское, Площадь парковки: 0, Пассажирский лифт: 0, От метро: 1180, Восточный, нет, Наименьшее кол-во этажей: 5, Наибольшее кол-во этажей: 5, Черкизовская, Кол-во помещений: 60, Кол-во нежилых помещений: 0, Год ввода в эксплуатацию: 1966, 3-комн, Кол-во жилых помещений: 60, E, дом 22, корпус 4, нет, да, да, да, да, нет, Грузовых лифтов: 0, Год постройки: 1966, Большая Черкизовская улица, 37.735782, 55.796511
Свяжитесь со мной на счет цены
10 дн.
T55S796511L37S735782T

На карте


Условия сделки

Источник


Старт продаж

Возможно заинтересует