Top.Mail.Ru

Большая Черкизовская ул., д. 28, к. 3

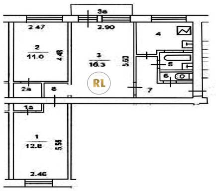
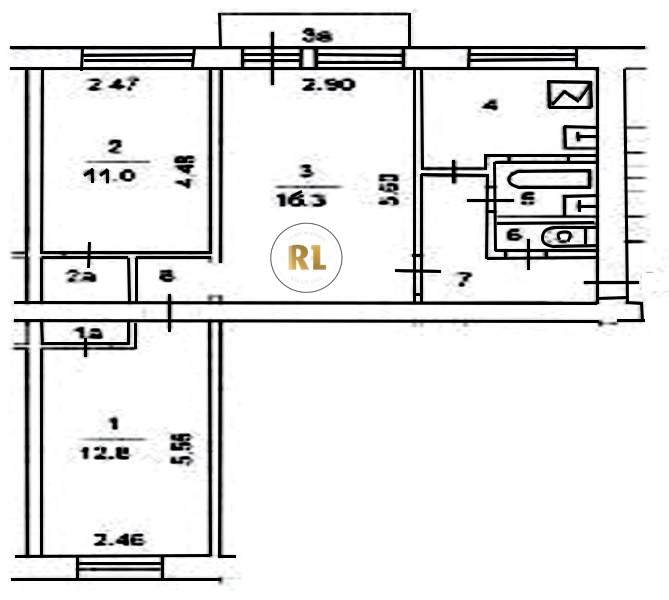
База каталог, Кол-во подъездов: 5, I-511, Москва, Преображенское, Площадь парковки: 0, Пассажирский лифт: 0, От метро: 960, Восточный, нет, Наименьшее кол-во этажей: 5, Наибольшее кол-во этажей: 5, Черкизовская, Кол-во помещений: 100, Кол-во нежилых помещений: 0, Год ввода в эксплуатацию: 1964, 3-комн, Кол-во жилых помещений: 100, D, дом 28, корпус 3, нет, да, да, да, да, да, Грузовых лифтов: 0, Год постройки: 1964, Большая Черкизовская улица, 37.740112, 55.796537
Свяжитесь со мной на счет цены
10 дн.
T55S796537L37S740112T

На карте


Условия сделки

Источник


Старт продаж

Возможно заинтересует