Top.Mail.Ru

Охотничья ул., д. 10/12, к. 5

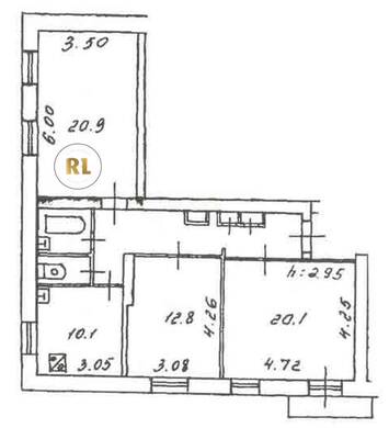
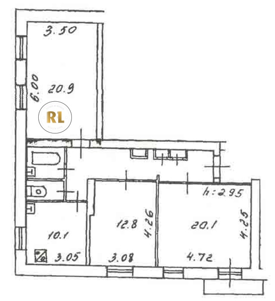
База каталог, Кол-во подъездов: 1, Отсутствует, II-05, Москва, Сокольники, Площадь парковки: 0, Пассажирский лифт: 0, От метро: 960, Восточный, нет, Наименьшее кол-во этажей: 0, Наибольшее кол-во этажей: 4, Сокольники, Кол-во помещений: 17, Кол-во нежилых помещений: 1, Год ввода в эксплуатацию: 1957, 3-комн, Кол-во жилых помещений: 16, Не присвоен, дом 10/12, корпус 5, нет, да, да, да, да, да, Отсутствует, Грузовых лифтов: 0, Год постройки: 1957, Охотничья улица, 37.685350, 55.797048
Свяжитесь со мной на счет цены
10 дн.
T55S797048L37S685350T

На карте


Условия сделки

Источник


Старт продаж

Возможно заинтересует