Top.Mail.Ru

Большая Черкизовская ул., д. 28, к. 2

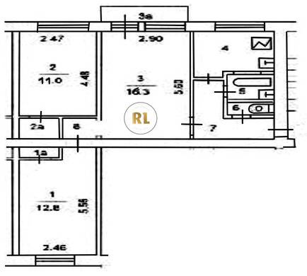
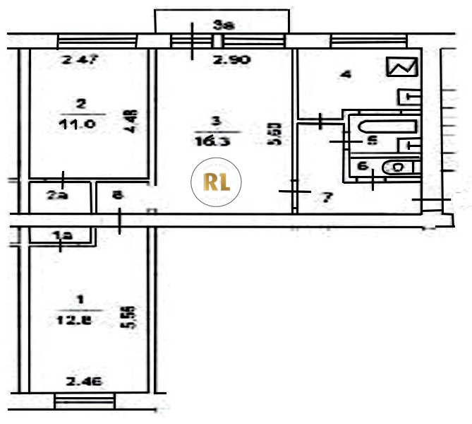
База каталог, Кол-во подъездов: 3, I-511, Москва, Преображенское, Площадь парковки: 0, Пассажирский лифт: 0, От метро: 920, Восточный, нет, Наименьшее кол-во этажей: 5, Наибольшее кол-во этажей: 5, Черкизовская, Кол-во помещений: 61, Кол-во нежилых помещений: 1, Год ввода в эксплуатацию: 1964, 3-комн, Кол-во жилых помещений: 60, E, дом 28, корпус 2, нет, да, да, да, да, да, Имеется, Грузовых лифтов: 0, Год постройки: 1965, Большая Черкизовская улица, 37.740219, 55.797225
Свяжитесь со мной на счет цены
10 дн.
T55S797225L37S740219T

На карте


Условия сделки

Источник


Старт продаж

Возможно заинтересует