Top.Mail.Ru

Большая Черкизовская ул., д. 26, к. 4

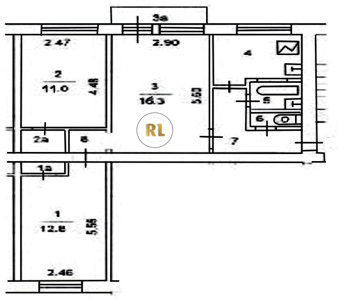
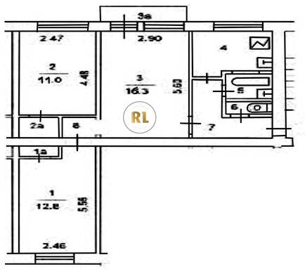
База каталог, Кол-во подъездов: 4, I-511, Москва, Преображенское, Площадь парковки: 0, Пассажирский лифт: 0, От метро: 850, Восточный, нет, Наименьшее кол-во этажей: 5, Наибольшее кол-во этажей: 5, Черкизовская, Кол-во помещений: 80, Кол-во нежилых помещений: 0, Год ввода в эксплуатацию: 1965, 3-комн, Кол-во жилых помещений: 80, D, дом 26, корпус 4, нет, да, да, да, да, да, Грузовых лифтов: 0, Год постройки: 1965, Большая Черкизовская улица, 37.739177, 55.797761
Свяжитесь со мной на счет цены
10 дн.
T55S797761L37S739177T

На карте


Условия сделки

Источник


Старт продаж

Возможно заинтересует