Top.Mail.Ru

3-я Прядильная ул., д. 13, к. 1

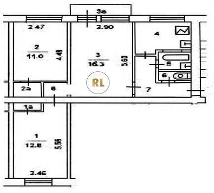
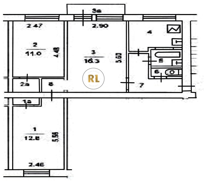
База каталог, Кол-во подъездов: 4, I-511, Москва, Измайлово, Площадь парковки: 0, Пассажирский лифт: 0, От метро: 1360, Восточный, нет, Наименьшее кол-во этажей: 5, Наибольшее кол-во этажей: 5, Измайловская, Кол-во помещений: 75, Кол-во нежилых помещений: 3, Год ввода в эксплуатацию: 1960, 3-комн, Кол-во жилых помещений: 72, D, дом 13, корпус 1, нет, да, да, да, да, нет, Грузовых лифтов: 0, Год постройки: 1960, 3-я Прядильная улица, 37.777320, 55.797873
Свяжитесь со мной на счет цены
10 дн.
T55S797873L37S777320T

На карте


Условия сделки

Источник


Старт продаж

Возможно заинтересует