Top.Mail.Ru

2-я ул. Бухвостова, д. 1

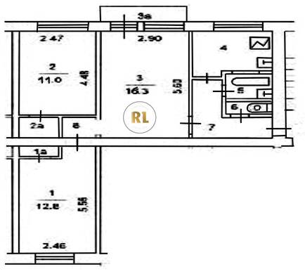
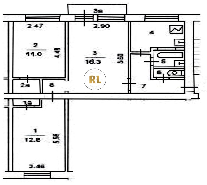
База каталог, Кол-во подъездов: 3, I-511, Москва, Преображенское, Пассажирский лифт: 0, От метро: 810, Восточный, да, Наименьшее кол-во этажей: 5, Наибольшее кол-во этажей: 5, Преображенская площадь, Кол-во помещений: 47, Кол-во нежилых помещений: 2, Год ввода в эксплуатацию: 1959, 3-комн, Кол-во жилых помещений: 45, дом 1, нет, да, да, да, да, да, Грузовых лифтов: 0, Год постройки: 1959, 2-я улица Бухвостова, 37.704718, 55.798313
Свяжитесь со мной на счет цены
10 дн.
T55S798313L37S704718T

На карте


Условия сделки

Источник


Старт продаж

Возможно заинтересует