Top.Mail.Ru

Таллинская ул., д. 12

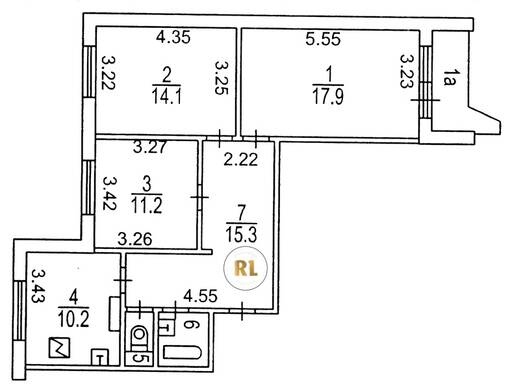
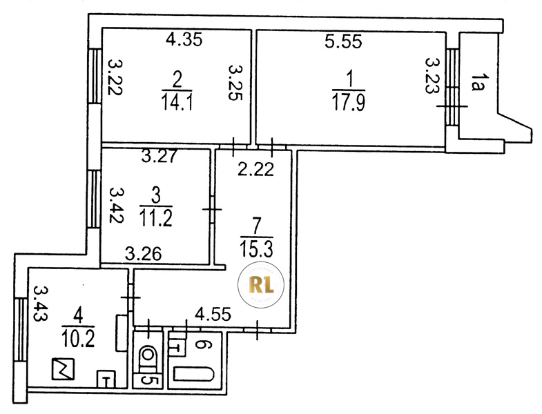
База каталог, Кол-во подъездов: 9, П-44, Москва, Строгино, Площадь парковки: 0, Пассажирский лифт: 9, От метро: 900, Северо-Западный, нет, Наименьшее кол-во этажей: 16, Наибольшее кол-во этажей: 16, Строгино, Кол-во помещений: 579, Кол-во нежилых помещений: 8, Год ввода в эксплуатацию: 1981, 3-комн, Кол-во жилых помещений: 571, E, дом 12, нет, да, да, да, да, да, Грузовых лифтов: 9, Год постройки: 1981, Таллинская улица, 37.398716, 55.798444
Свяжитесь со мной на счет цены
10 дн.
T55S798444L37S398716T

На карте


Условия сделки

Источник


Старт продаж

Возможно заинтересует