Top.Mail.Ru

Никитинская ул., д. 11

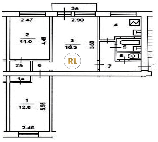
База каталог, Кол-во подъездов: 4, I-511, Москва, Измайлово, Пассажирский лифт: 0, От метро: 1300, Восточный, да, Наименьшее кол-во этажей: 5, Наибольшее кол-во этажей: 5, Измайловская, Кол-во помещений: 67, Кол-во нежилых помещений: 3, Год ввода в эксплуатацию: 1962, 3-комн, Кол-во жилых помещений: 64, D, дом 11, нет, да, да, да, да, нет, Грузовых лифтов: 0, Год постройки: 1962, Никитинская улица, 37.774715, 55.798449
Свяжитесь со мной на счет цены
10 дн.
T55S798449L37S774715T

На карте


Условия сделки

Источник


Старт продаж

Возможно заинтересует