Top.Mail.Ru

Никитинская ул., д. 8, к. 1

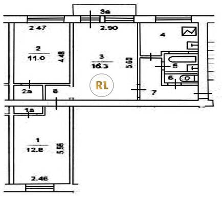
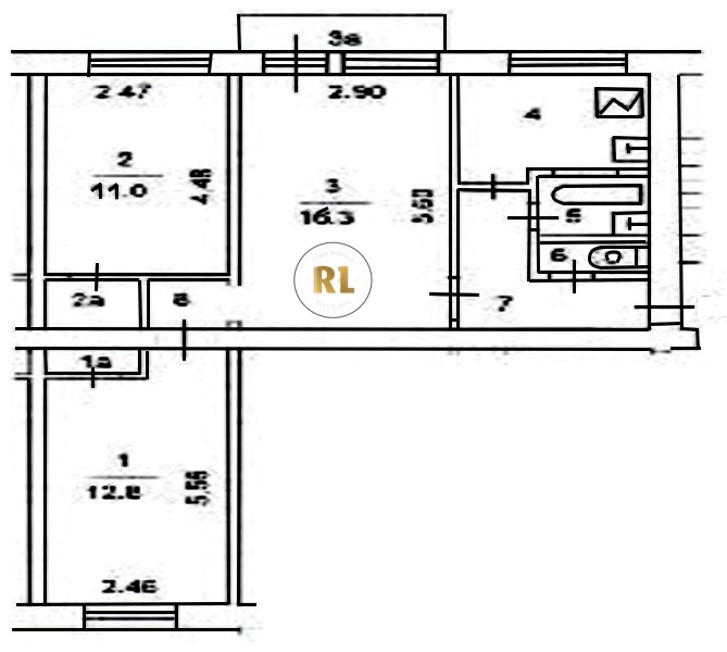
База каталог, Кол-во подъездов: 4, I-511, Москва, Измайлово, Пассажирский лифт: 0, От метро: 1290, Восточный, да, Наименьшее кол-во этажей: 5, Наибольшее кол-во этажей: 5, Измайловская, Кол-во помещений: 67, Кол-во нежилых помещений: 3, Год ввода в эксплуатацию: 1965, 3-комн, Кол-во жилых помещений: 64, D, дом 8, корпус 1, нет, да, да, да, да, нет, Грузовых лифтов: 0, Год постройки: 1965, Никитинская улица, 37.775478, 55.798485
Свяжитесь со мной на счет цены
10 дн.
T55S798485L37S775478T

На карте


Условия сделки

Источник


Старт продаж

Возможно заинтересует