Top.Mail.Ru

улица Короленко, д. 1, к. 7

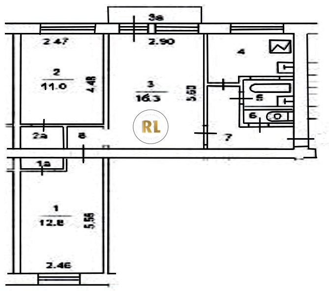
База каталог, Кол-во подъездов: 3, Отсутствует, I-511, Москва, Сокольники, Площадь парковки: 0, Пассажирский лифт: 0, От метро: 1500, Восточный, нет, Наименьшее кол-во этажей: 5, Наибольшее кол-во этажей: 5, Сокольники, Кол-во помещений: 62, Кол-во нежилых помещений: 2, Год ввода в эксплуатацию: 1963, 3-комн, Кол-во жилых помещений: 60, Не присвоен, дом 1, корпус 7, нет, да, да, да, да, нет, Отсутствует, Грузовых лифтов: 0, Год постройки: 1963, улица Короленко, 37.691064, 55.798748
Свяжитесь со мной на счет цены
10 дн.
T55S798748L37S691064T

На карте


Условия сделки

Источник


Старт продаж

Возможно заинтересует