Top.Mail.Ru

Большая Черкизовская ул., д. 28, к. 1

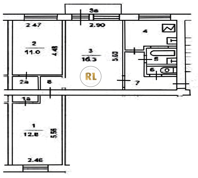
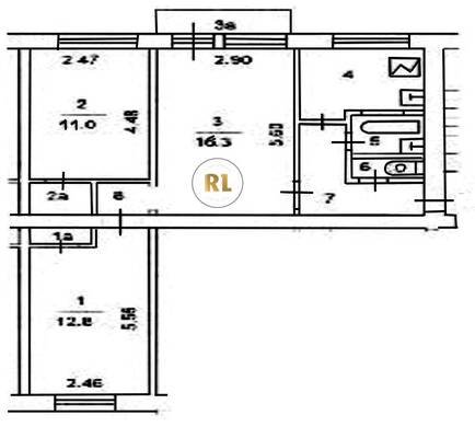
База каталог, Кол-во подъездов: 4, I-511, Москва, Преображенское, Площадь парковки: 0, Пассажирский лифт: 0, От метро: 730, Восточный, нет, Наименьшее кол-во этажей: 5, Наибольшее кол-во этажей: 5, Черкизовская, Кол-во помещений: 81, Кол-во нежилых помещений: 3, Год ввода в эксплуатацию: 1964, 3-комн, Кол-во жилых помещений: 78, D, дом 28, корпус 1, нет, да, да, да, да, да, Имеется, Грузовых лифтов: 0, Год постройки: 1964, Большая Черкизовская улица, 37.739788, 55.798981
Свяжитесь со мной на счет цены
10 дн.
T55S798981L37S739788T

На карте


Условия сделки

Источник


Старт продаж

Возможно заинтересует