Top.Mail.Ru

Шереметьевская ул., д. 19, к. 2

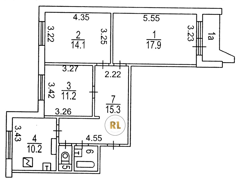
База каталог, Кол-во подъездов: 3, П-44, Москва, Марьина Роща, Площадь парковки: 0, Пассажирский лифт: 3, От метро: 380, Северо-Восточный, нет, Наименьшее кол-во этажей: 16, Наибольшее кол-во этажей: 16, Марьина Роща, Кол-во помещений: 191, Кол-во нежилых помещений: 0, Год ввода в эксплуатацию: 1983, 3-комн, Кол-во жилых помещений: 191, Не присвоен, дом 19, корпус 2, да, да, да, да, да, да, Имеется, Грузовых лифтов: 3, Год постройки: 1983, Шереметьевская улица, 37.614267, 55.799224
Свяжитесь со мной на счет цены
10 дн.
T55S799224L37S614267T

На карте


Условия сделки

Источник


Старт продаж

Возможно заинтересует