Top.Mail.Ru

Никитинская ул., д. 15, к. 1

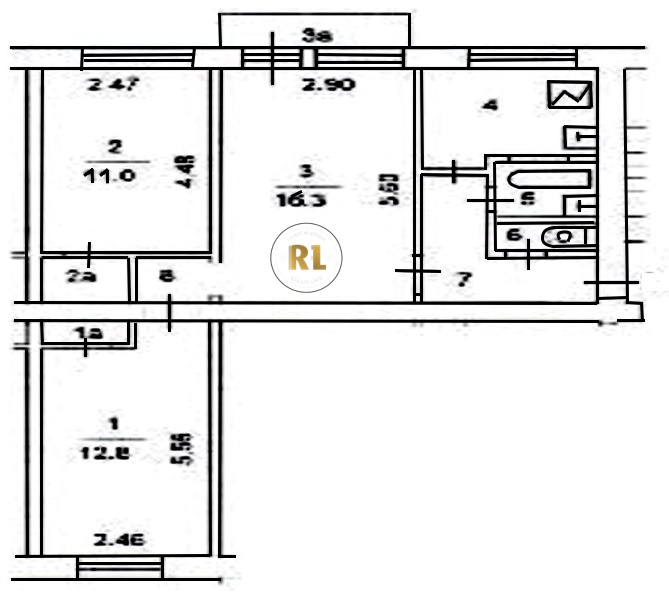
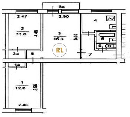
База каталог, Кол-во подъездов: 4, I-511, Москва, Измайлово, Пассажирский лифт: 0, От метро: 1480, Восточный, да, Наименьшее кол-во этажей: 5, Наибольшее кол-во этажей: 5, Измайловская, Кол-во помещений: 83, Кол-во нежилых помещений: 3, Год ввода в эксплуатацию: 1961, 3-комн, Кол-во жилых помещений: 80, D, дом 15, корпус 1, нет, да, да, да, да, нет, Грузовых лифтов: 0, Год постройки: 1961, Никитинская улица, 37.774301, 55.799446
Свяжитесь со мной на счет цены
10 дн.
T55S799446L37S774301T

На карте


Условия сделки

Источник


Старт продаж

Возможно заинтересует