Top.Mail.Ru

Полтавская ул., д. 47, к. 1

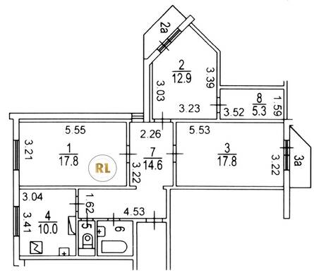
База каталог, Кол-во подъездов: 4, П-3M, Москва, Савеловский, Площадь парковки: 0, Пассажирский лифт: 4, От метро: 1370, Северный, нет, Наименьшее кол-во этажей: 17, Наибольшее кол-во этажей: 17, Петровский парк, Кол-во помещений: 208, Кол-во нежилых помещений: 0, Год ввода в эксплуатацию: 2000, 3-комн, Кол-во жилых помещений: 208, С, дом 47, корпус 1, нет, да, да, да, да, нет, Имеется, Грузовых лифтов: 4, Год постройки: 2000, Полтавская улица, 37.571758, 55.799507
25 700 000 Р
10 дн.
T55S799507L37S571758T
+

На карте


Условия сделки

Источник