Top.Mail.Ru

Таллинская ул., д. 11, к. 1

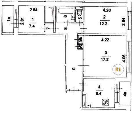
База каталог, Кол-во подъездов: 8, П-30, Москва, Строгино, Площадь парковки: 0, Пассажирский лифт: 16, От метро: 560, Северо-Западный, нет, Наименьшее кол-во этажей: 12, Наибольшее кол-во этажей: 12, Строгино, Кол-во помещений: 380, Кол-во нежилых помещений: 2, Год ввода в эксплуатацию: 1981, 3-комн, Кол-во жилых помещений: 378, E, дом 11, корпус 1, да, да, да, да, да, да, Грузовых лифтов: 0, Год постройки: 1981, Таллинская улица, 37.398913, 55.799674
Свяжитесь со мной на счет цены
10 дн.
T55S799674L37S398913T

На карте


Условия сделки

Источник


Старт продаж

Возможно заинтересует