Top.Mail.Ru

Верхняя Первомайская ул., д. 25

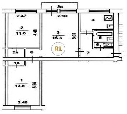
База каталог, Кол-во подъездов: 4, I-511, Москва, Измайлово, Пассажирский лифт: 0, От метро: 1240, Восточный, да, Наименьшее кол-во этажей: 5, Наибольшее кол-во этажей: 5, Первомайская, Кол-во помещений: 82, Кол-во нежилых помещений: 2, Год ввода в эксплуатацию: 1960, 3-комн, Кол-во жилых помещений: 80, D, дом 25, нет, да, да, да, да, нет, Грузовых лифтов: 0, Год постройки: 1960, Верхняя Первомайская улица, 37.786285, 55.799821
Свяжитесь со мной на счет цены
10 дн.
T55S799821L37S786285T

На карте


Условия сделки

Источник


Старт продаж

Возможно заинтересует