Top.Mail.Ru

Верхняя Первомайская ул., д. 35

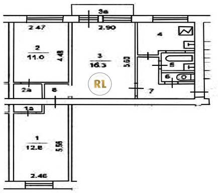
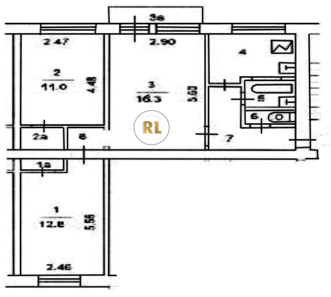
База каталог, Кол-во помещений: 40, I-511, Москва, Измайлово, Площадь парковки: 0, Пассажирский лифт: 0, От метро: 960, Восточный, нет, Наименьшее кол-во этажей: 5, Наибольшее кол-во этажей: 5, Первомайская, Кол-во подъездов: 2, Год ввода в эксплуатацию: 1962, Кол-во нежилых помещений: 0, 3-комн, Кол-во жилых помещений: 40, дом 35, нет, да, да, да, да, да, Грузовых лифтов: 0, Год постройки: 1962, Верхняя Первомайская улица, 37.790768, 55.799836
Свяжитесь со мной на счет цены
10 дн.
T55S799836L37S790768T

На карте


Условия сделки

Источник


Старт продаж

Возможно заинтересует