Top.Mail.Ru

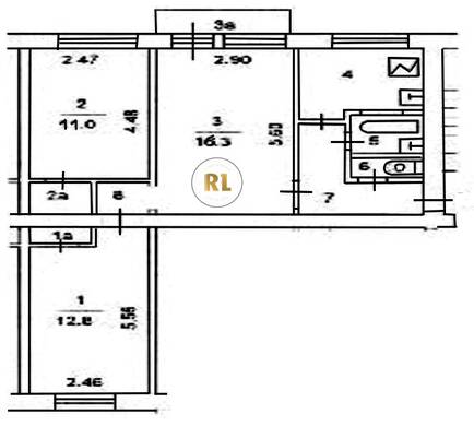
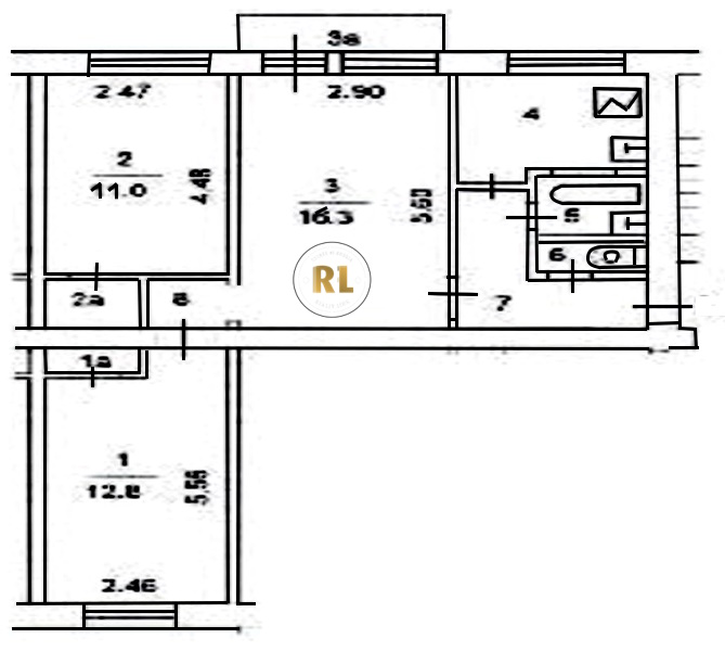
3-я Парковая ул., д. 36, к. 2

База каталог, Кол-во подъездов: 2, I-511, Москва, Измайлово, Пассажирский лифт: 0, От метро: 1420, Восточный, да, Наименьшее кол-во этажей: 5, Наибольшее кол-во этажей: 5, Первомайская, Кол-во помещений: 43, Кол-во нежилых помещений: 3, Год ввода в эксплуатацию: 1960, 3-комн, Кол-во жилых помещений: 40, D, дом 36, корпус 2, нет, да, да, да, да, нет, Грузовых лифтов: 0, Год постройки: 1960, 3-я Парковая улица, 37.784398, 55.800327
Свяжитесь со мной на счет цены
10 дн.
T55S800327L37S784398T

На карте


Условия сделки

Источник


Старт продаж

Возможно заинтересует