Top.Mail.Ru

Таллинская ул., д. 17, к. 2

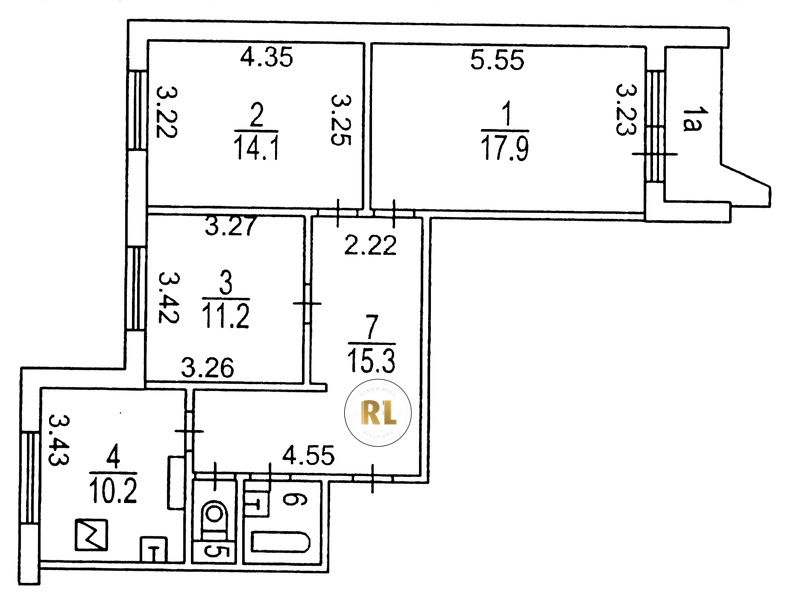
База каталог, Кол-во помещений: 191, П-44, Москва, Строгино, Площадь парковки: 0, Пассажирский лифт: 3, От метро: 390, Северо-Западный, нет, Наименьшее кол-во этажей: 1, Наибольшее кол-во этажей: 16, Строгино, Кол-во подъездов: 3, Год ввода в эксплуатацию: 1981, Кол-во нежилых помещений: 1, 3-комн, Кол-во жилых помещений: 190, дом 17, корпус 2, да, да, да, да, да, да, Грузовых лифтов: 3, Год постройки: 1981, Таллинская улица, 37.402884, 55.800453
Свяжитесь со мной на счет цены
10 дн.
T55S800453L37S402884T

На карте


Условия сделки

Источник


Старт продаж

Возможно заинтересует