Top.Mail.Ru

3-я Парковая ул., д. 36, к. 3

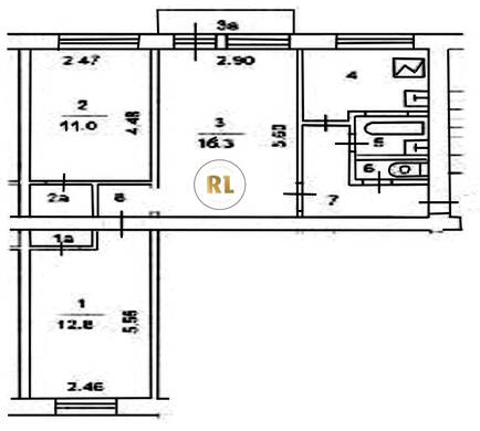
База каталог, Кол-во подъездов: 3, I-511, Москва, Измайлово, Пассажирский лифт: 0, От метро: 1480, Восточный, да, Наименьшее кол-во этажей: 5, Наибольшее кол-во этажей: 5, Первомайская, Кол-во помещений: 63, Кол-во нежилых помещений: 3, Год ввода в эксплуатацию: 1960, 3-комн, Кол-во жилых помещений: 60, D, дом 36, корпус 3, нет, да, да, да, да, нет, Грузовых лифтов: 0, Год постройки: 1960, 3-я Парковая улица, 37.784237, 55.800767
Свяжитесь со мной на счет цены
10 дн.
T55S800767L37S784237T

На карте


Условия сделки

Источник


Старт продаж

Возможно заинтересует