Top.Mail.Ru

Никитинская ул., д. 21, к. 3

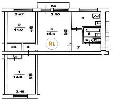
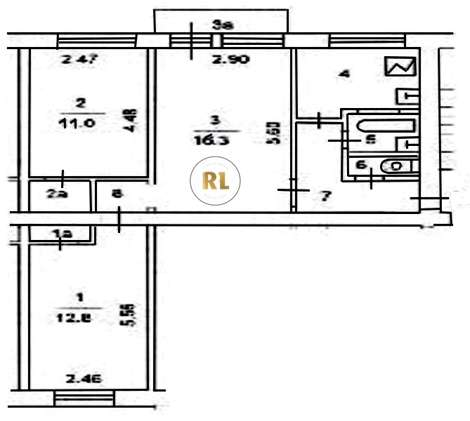
База каталог, Кол-во подъездов: 4, I-511, Москва, Измайлово, Пассажирский лифт: 0, От метро: 1750, Восточный, да, Наименьшее кол-во этажей: 5, Наибольшее кол-во этажей: 5, Измайловская, Кол-во помещений: 83, Кол-во нежилых помещений: 3, Год ввода в эксплуатацию: 1960, 3-комн, Кол-во жилых помещений: 80, D, дом 21, корпус 3, нет, да, да, да, нет, нет, Грузовых лифтов: 0, Год постройки: 1960, Никитинская улица, 37.772729, 55.801460
Свяжитесь со мной на счет цены
10 дн.
T55S801460L37S772729T

На карте


Условия сделки

Источник


Старт продаж

Возможно заинтересует