Top.Mail.Ru

Шереметьевская ул., д. 23/2

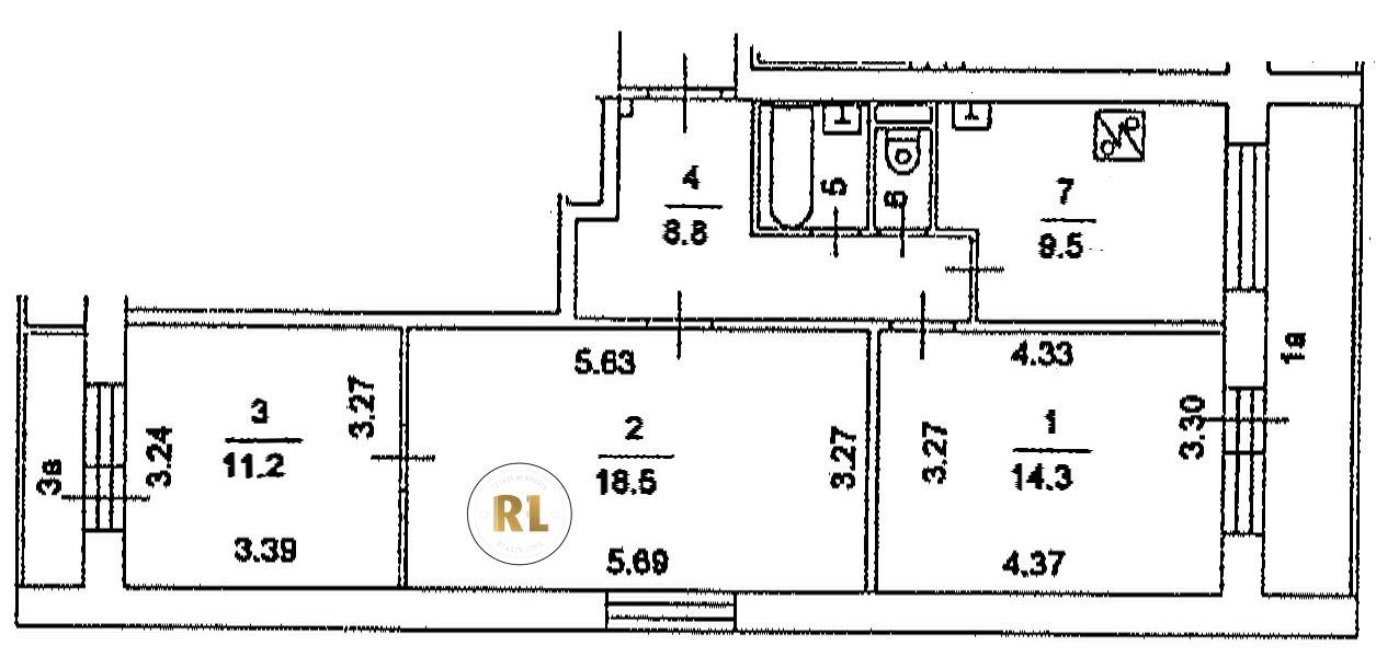
База каталог, Кол-во подъездов: 1, Имеется, И-209А, Москва, Марьина Роща, Пассажирский лифт: 2, От метро: 630, Северо-Восточный, да, Наименьшее кол-во этажей: 1, Наибольшее кол-во этажей: 14, Марьина Роща, Кол-во помещений: 98, Кол-во нежилых помещений: 0, Год ввода в эксплуатацию: 1971, 3-комн, Кол-во жилых помещений: 98, дом 23/2, нет, да, да, да, да, да, Имеется, Грузовых лифтов: 0, Год постройки: 1971, Шереметьевская улица, 37.614886, 55.801642
Свяжитесь со мной на счет цены
10 дн.
T55S801642L37S614886T

На карте


Условия сделки

Источник


Старт продаж

Возможно заинтересует