Top.Mail.Ru

Потешная ул., д. 16

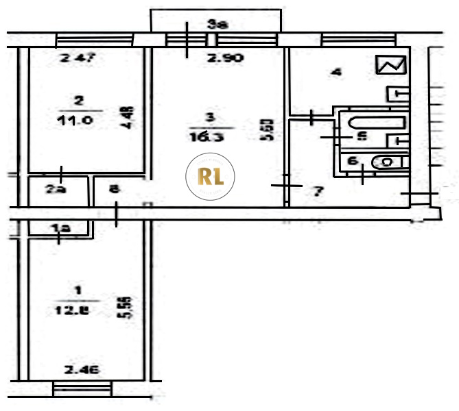
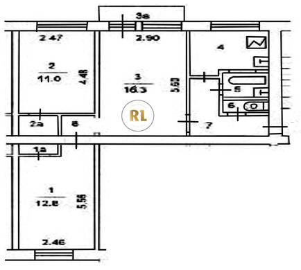
База каталог, Кол-во подъездов: 6, I-511, Москва, Преображенское, Пассажирский лифт: 0, От метро: 1170, Восточный, да, Наименьшее кол-во этажей: 5, Наибольшее кол-во этажей: 5, Преображенская площадь, Кол-во помещений: 125, Кол-во нежилых помещений: 3, Год ввода в эксплуатацию: 1964, 3-комн, Кол-во жилых помещений: 122, дом 16, нет, да, да, да, да, нет, Имеется, Грузовых лифтов: 0, Год постройки: 1964, Потешная улица, 37.702849, 55.801657
Свяжитесь со мной на счет цены
10 дн.
T55S801657L37S702849T

На карте


Условия сделки

Источник


Старт продаж

Возможно заинтересует