Top.Mail.Ru

1-й Зборовский переулок, д. 17

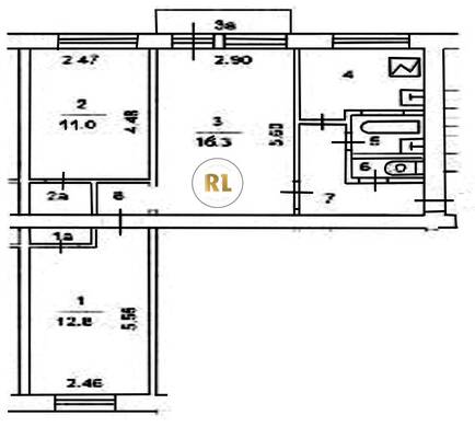
База каталог, Кол-во подъездов: 4, I-511, Москва, Преображенское, Пассажирский лифт: 0, От метро: 1110, Восточный, да, Наименьшее кол-во этажей: 5, Наибольшее кол-во этажей: 5, Преображенская площадь, Кол-во помещений: 82, Кол-во нежилых помещений: 2, Год ввода в эксплуатацию: 1960, 3-комн, Кол-во жилых помещений: 80, дом 17, нет, да, да, да, да, нет, Имеется, Грузовых лифтов: 0, Год постройки: 1960, 1-й Зборовский переулок, 37.703649, 55.801683
Свяжитесь со мной на счет цены
10 дн.
T55S801683L37S703649T

На карте


Условия сделки

Источник


Старт продаж

Возможно заинтересует