Top.Mail.Ru

Строгинский бульвар, д. 26, к. 4

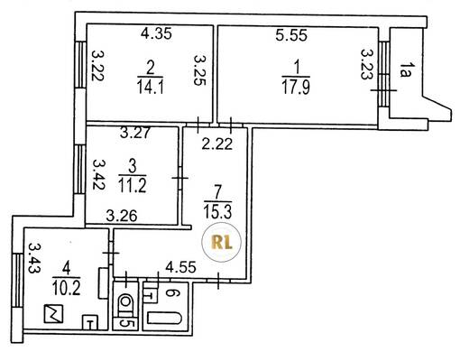
База каталог, Кол-во подъездов: 0, П-44-1/17, Москва, Строгино, Пассажирский лифт: 0, От метро: 320, Северо-Западный, да, Наименьшее кол-во этажей: 0, Наибольшее кол-во этажей: 0, Строгино, Кол-во помещений: 0, Кол-во нежилых помещений: 0, Год ввода в эксплуатацию: 2002, 3-комн, Кол-во жилых помещений: 0, дом 26, корпус 4, да, да, да, да, да, да, Грузовых лифтов: 0, Год постройки: 2002, Строгинский бульвар, 37.402120, 55.801688
Свяжитесь со мной на счет цены
10 дн.
T55S801688L37S402120T

На карте


Условия сделки

Источник


Старт продаж

Возможно заинтересует