Top.Mail.Ru

5-я Парковая ул., д. 41

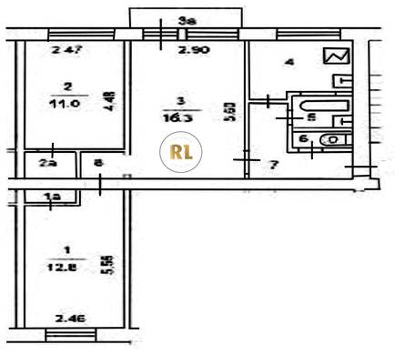
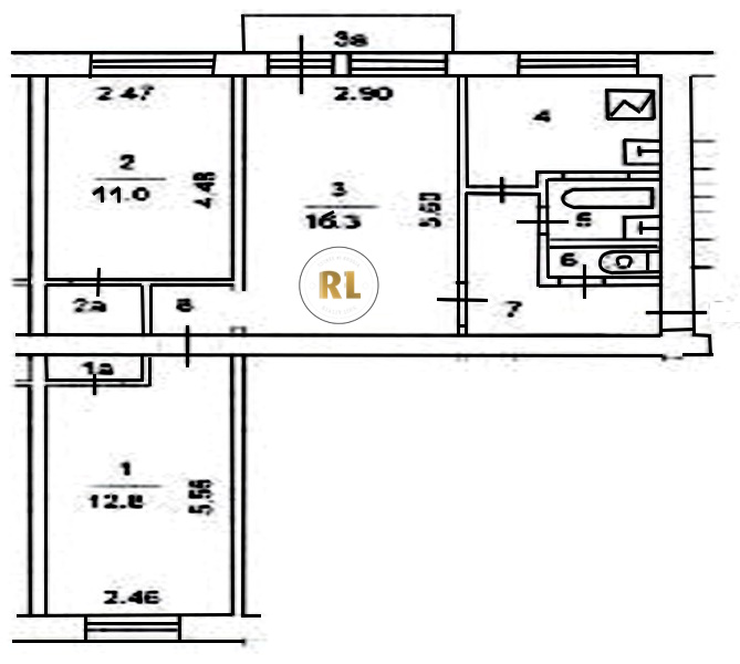
База каталог, Кол-во подъездов: 4, I-511, Москва, Измайлово, Площадь парковки: 0, Пассажирский лифт: 0, От метро: 1340, Восточный, нет, Наименьшее кол-во этажей: 5, Наибольшее кол-во этажей: 5, Первомайская, Кол-во помещений: 83, Кол-во нежилых помещений: 3, Год ввода в эксплуатацию: 1959, 3-комн, Кол-во жилых помещений: 80, D, дом 41, нет, да, да, да, да, нет, Грузовых лифтов: 0, Год постройки: 1959, 5-я Парковая улица, 37.787444, 55.801819
Свяжитесь со мной на счет цены
10 дн.
T55S801819L37S787444T

На карте


Условия сделки

Источник


Старт продаж

Возможно заинтересует