Top.Mail.Ru

11-я Парковая ул., д. 41, к. 1

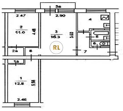
База каталог, Кол-во подъездов: 4, I-511, Москва, Измайлово, Площадь парковки: 0, Пассажирский лифт: 0, От метро: 1000, Восточный, нет, Наименьшее кол-во этажей: 5, Наибольшее кол-во этажей: 5, Первомайская, Кол-во помещений: 79, Кол-во нежилых помещений: 0, Год ввода в эксплуатацию: 1962, 3-комн, Кол-во жилых помещений: 79, дом 41, корпус 1, нет, да, да, да, да, да, Имеется, Грузовых лифтов: 0, Год постройки: 1962, 11-я Парковая улица, 37.804745, 55.802022
Свяжитесь со мной на счет цены
10 дн.
T55S802022L37S804745T

На карте


Условия сделки

Источник


Старт продаж

Возможно заинтересует