Top.Mail.Ru

Шереметьевская ул., д. 25

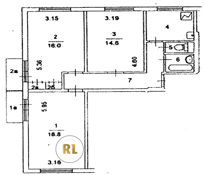
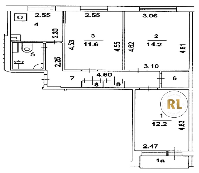
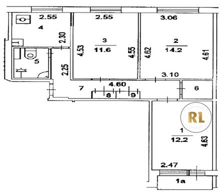
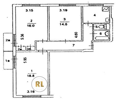
База каталог, Кол-во подъездов: 10, II-49Д, Москва, Марьина Роща, Площадь парковки: 0, Пассажирский лифт: 10, От метро: 780, Северо-Восточный, нет, Наименьшее кол-во этажей: 9, Наибольшее кол-во этажей: 9, Марьина Роща, Кол-во помещений: 358, Кол-во нежилых помещений: 0, Год ввода в эксплуатацию: 1971, 3-комн, Кол-во жилых помещений: 358, Не присвоен, дом 25, нет, да, да, да, да, да, Имеется, Грузовых лифтов: 0, Год постройки: 1971, Шереметьевская улица, 37.613233, 55.802229
Свяжитесь со мной на счет цены
10 дн.
T55S802229L37S613233T

На карте


Условия сделки

Источник


Старт продаж

Возможно заинтересует