Top.Mail.Ru

Строгинский бульвар, д. 26, к. 2

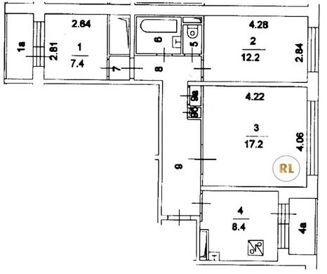
База каталог, Кол-во подъездов: 9, П-30, Москва, Строгино, Площадь парковки: 0, Пассажирский лифт: 18, От метро: 199, Северо-Западный, нет, Наименьшее кол-во этажей: 12, Наибольшее кол-во этажей: 12, Строгино, Кол-во помещений: 433, Кол-во нежилых помещений: 19, Год ввода в эксплуатацию: 1981, 3-комн, Кол-во жилых помещений: 414, E, дом 26, корпус 2, да, да, да, да, да, да, Грузовых лифтов: 0, Год постройки: 1981, Строгинский бульвар, 37.404492, 55.802234
Свяжитесь со мной на счет цены
10 дн.
T55S802234L37S404492T

На карте


Условия сделки

Источник


Старт продаж

Возможно заинтересует