Top.Mail.Ru

Строгинский бульвар, д. 14, к. 3

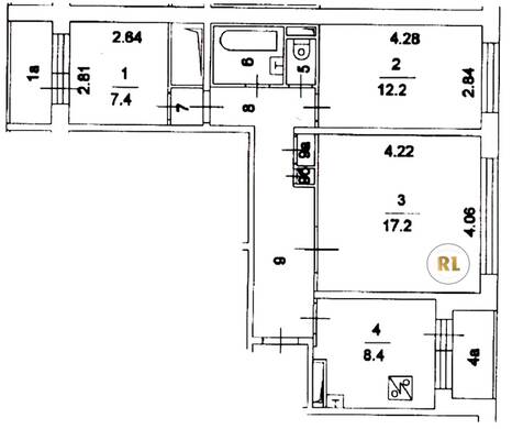
База каталог, Кол-во подъездов: 8, П-30, Москва, Строгино, Площадь парковки: 0, Пассажирский лифт: 16, От метро: 158, Северо-Западный, нет, Наименьшее кол-во этажей: 12, Наибольшее кол-во этажей: 12, Строгино, Кол-во помещений: 382, Кол-во нежилых помещений: 13, Год ввода в эксплуатацию: 1981, 3-комн, Кол-во жилых помещений: 369, E, дом 14, корпус 3, да, да, да, да, да, да, Грузовых лифтов: 0, Год постройки: 1981, Строгинский бульвар, 37.399129, 55.803368
Свяжитесь со мной на счет цены
10 дн.
T55S803368L37S399129T

На карте


Условия сделки

Источник


Старт продаж

Возможно заинтересует