Top.Mail.Ru

Сиреневый бульвар, д. 51

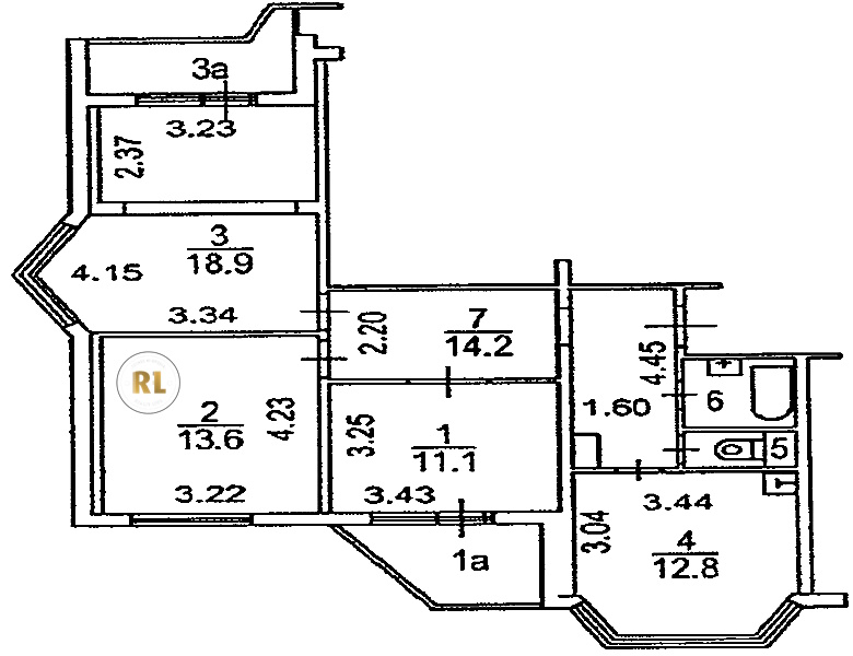
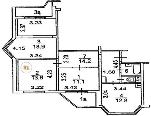
База каталог, Кол-во подъездов: 1, Отсутствует, П-44T, Москва, Северное Измайлово, Пассажирский лифт: 1, От метро: 1430, Восточный, да, Наименьшее кол-во этажей: 17, Наибольшее кол-во этажей: 17, Щёлковская, Кол-во помещений: 68, Кол-во нежилых помещений: 4, Год ввода в эксплуатацию: 2007, 3-комн, Кол-во жилых помещений: 64, дом 51, нет, да, да, да, да, нет, Имеется, Грузовых лифтов: 1, Год постройки: 2007, Сиреневый бульвар, 37.813639, 55.803585
Свяжитесь со мной на счет цены
10 дн.
T55S803585L37S813639T

На карте


Условия сделки

Источник


Старт продаж

Возможно заинтересует