Top.Mail.Ru

Знаменская ул., д. 39

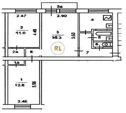
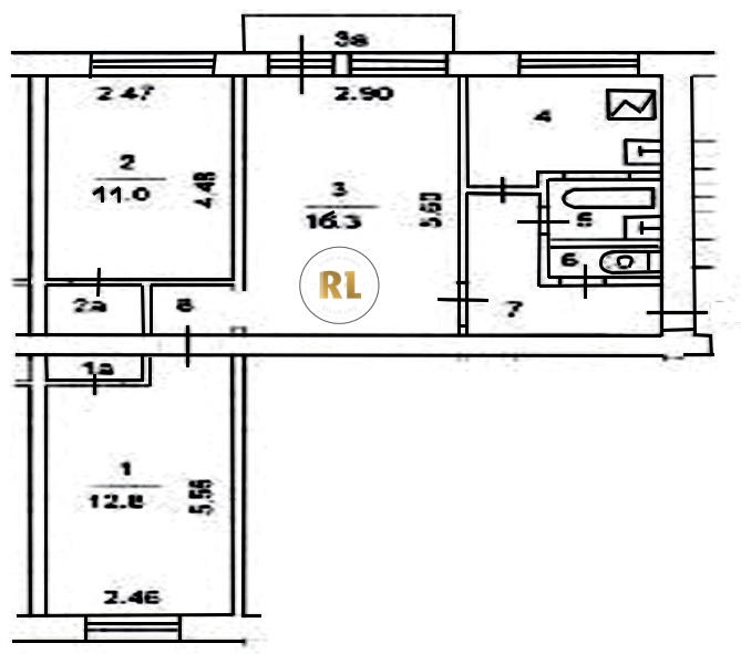
База каталог, Кол-во подъездов: 6, Имеется, I-511, Москва, Преображенское, Пассажирский лифт: 0, От метро: 1070, Восточный, да, Наименьшее кол-во этажей: 5, Наибольшее кол-во этажей: 5, Преображенская площадь, Кол-во помещений: 119, Кол-во нежилых помещений: 0, Год ввода в эксплуатацию: 1966, 3-комн, Кол-во жилых помещений: 119, Не присвоен, дом 39, нет, да, да, да, да, да, Имеется, Грузовых лифтов: 0, Год постройки: 1966, Знаменская улица, 37.721319, 55.803757
Свяжитесь со мной на счет цены
10 дн.
T55S803757L37S721319T

На карте


Условия сделки

Источник


Старт продаж

Возможно заинтересует