Top.Mail.Ru

Никитинская ул., д. 27, к. 1

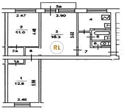
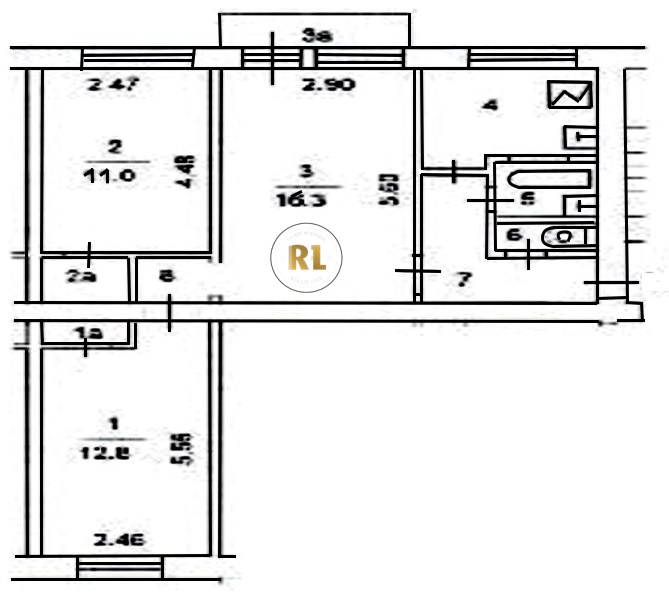
База каталог, Кол-во подъездов: 4, Отсутствует, I-511-4/М22БН, Москва, Северное Измайлово, Пассажирский лифт: 0, От метро: 1940, Восточный, да, Наименьшее кол-во этажей: 5, Наибольшее кол-во этажей: 5, Локомотив, Кол-во помещений: 81, Кол-во нежилых помещений: 1, Год ввода в эксплуатацию: 1962, 3-комн, Кол-во жилых помещений: 80, D, дом 27, корпус 1, нет, да, да, да, нет, нет, Отсутствует, Грузовых лифтов: 0, Год постройки: 1962, Никитинская улица, 37.773412, 55.804066
Свяжитесь со мной на счет цены
10 дн.
T55S804066L37S773412T

На карте


Условия сделки

Источник


Старт продаж

Возможно заинтересует