Top.Mail.Ru

13-я Парковая ул., д. 26

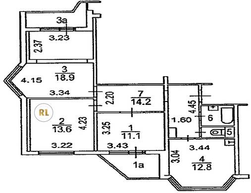
База каталог, Кол-во подъездов: 5, Отсутствует, П-44T, Москва, Северное Измайлово, Площадь парковки: 0, Пассажирский лифт: 10, От метро: 1290, Восточный, нет, Наименьшее кол-во этажей: 17, Наибольшее кол-во этажей: 17, Щёлковская, Кол-во помещений: 347, Кол-во нежилых помещений: 10, Год ввода в эксплуатацию: 2002, 3-комн, Кол-во жилых помещений: 337, E, дом 26, нет, да, да, да, да, нет, Имеется, Грузовых лифтов: 0, Год постройки: 2002, 13-я Парковая улица, 37.812767, 55.804435
23 000 000 Р
10 дн.
T55S804435L37S812767T
+

На карте


Условия сделки

Источник


Старт продаж

Возможно заинтересует