Top.Mail.Ru

Открытое шоссе, д. 2, к. 10

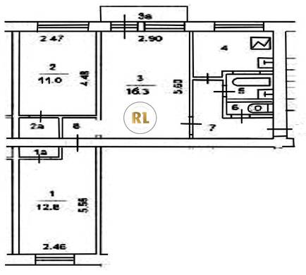
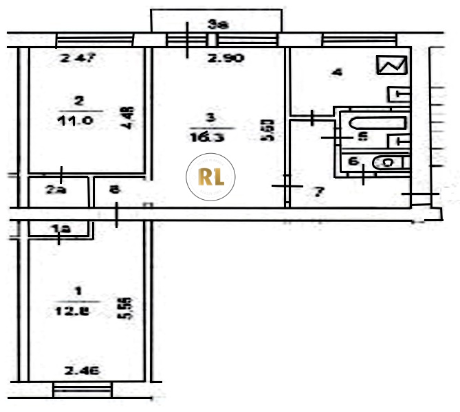
База каталог, Кол-во подъездов: 4, Имеется, I-511, Москва, Преображенское, Пассажирский лифт: 0, От метро: 1210, Восточный, да, Наименьшее кол-во этажей: 5, Наибольшее кол-во этажей: 5, Бульвар Рокоссовского, Кол-во помещений: 66, Кол-во нежилых помещений: 7, Год ввода в эксплуатацию: 1960, 3-комн, Кол-во жилых помещений: 59, Не присвоен, дом 2, корпус 10, нет, да, да, да, да, нет, Имеется, Грузовых лифтов: 0, Год постройки: 1960, Открытое шоссе, 37.728595, 55.805022
Свяжитесь со мной на счет цены
10 дн.
T55S805022L37S728595T

На карте


Условия сделки

Источник


Старт продаж

Возможно заинтересует