Top.Mail.Ru

15-я Парковая ул., д. 45

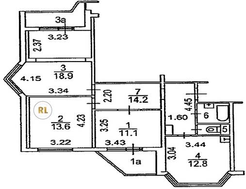
База каталог, Кол-во подъездов: 6, Имеется, П-44T, Москва, Северное Измайлово, Площадь парковки: 0, Пассажирский лифт: 12, От метро: 1520, Восточный, нет, Наименьшее кол-во этажей: 14, Наибольшее кол-во этажей: 14, Щёлковская, Кол-во помещений: 386, Кол-во нежилых помещений: 17, Год ввода в эксплуатацию: 2003, 3-комн, Кол-во жилых помещений: 369, E, дом 45, нет, да, да, да, да, нет, Имеется, Грузовых лифтов: 0, Год постройки: 2003, 15-я Парковая улица, 37.817492, 55.805832
Свяжитесь со мной на счет цены
10 дн.
T55S805832L37S817492T

На карте


Условия сделки

Источник


Старт продаж

Возможно заинтересует