Top.Mail.Ru

Алымов переулок, д. 4

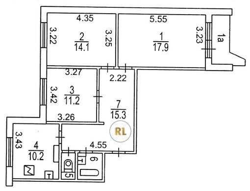
База каталог, Кол-во подъездов: 6, П-44, Москва, Богородское, Площадь парковки: 1379, Пассажирский лифт: 6, От метро: 1280, Восточный, да, Наименьшее кол-во этажей: 1, Наибольшее кол-во этажей: 14, Преображенская площадь, Кол-во помещений: 327, Кол-во нежилых помещений: 0, Год ввода в эксплуатацию: 1999, 3-комн, Кол-во жилых помещений: 327, С, дом 4, нет, да, да, да, да, нет, Имеется, Грузовых лифтов: 6, Год постройки: 1999, Алымов переулок, 37.712129, 55.806080
Свяжитесь со мной на счет цены
10 дн.
T55S806080L37S712129T

На карте


Условия сделки

Источник


Старт продаж

Возможно заинтересует