Top.Mail.Ru

Открытое шоссе, д. 2, к. 9А

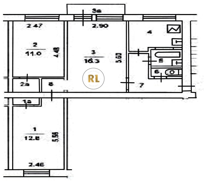
База каталог, Кол-во подъездов: 3, Имеется, I-511, Москва, Преображенское, Пассажирский лифт: 0, От метро: 1020, Восточный, да, Наименьшее кол-во этажей: 5, Наибольшее кол-во этажей: 5, Бульвар Рокоссовского, Кол-во помещений: 58, Кол-во нежилых помещений: 2, Год ввода в эксплуатацию: 1959, 3-комн, Кол-во жилых помещений: 56, С, дом 2, корпус 9А, нет, да, да, да, да, да, Имеется, Грузовых лифтов: 0, Год постройки: 1959, Открытое шоссе, 37.729233, 55.806257
Свяжитесь со мной на счет цены
10 дн.
T55S806257L37S729233T

На карте


Условия сделки

Источник


Старт продаж

Возможно заинтересует