Top.Mail.Ru

улица Исаковского, д. 31

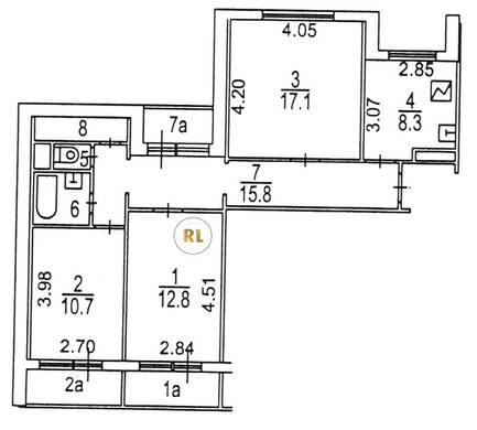
База каталог, Кол-во подъездов: 4, Отсутствует, П-55, Москва, Строгино, Площадь парковки: 0, Пассажирский лифт: 8, От метро: 1100, Северо-Западный, нет, Наименьшее кол-во этажей: 14, Наибольшее кол-во этажей: 14, Строгино, Кол-во помещений: 157, Кол-во нежилых помещений: 0, Год ввода в эксплуатацию: 1987, 3-комн, Кол-во жилых помещений: 157, Не присвоен, дом 31, нет, да, да, да, да, нет, Имеется, Грузовых лифтов: 0, Год постройки: 1987, улица Исаковского, 37.417994, 55.806287
Свяжитесь со мной на счет цены
10 дн.
T55S806287L37S417994T

На карте


Условия сделки

Источник


Старт продаж

Возможно заинтересует