Top.Mail.Ru

Открытое шоссе, д. 2, к. 9

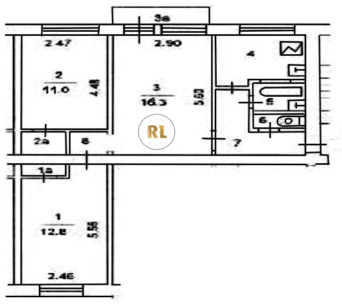
База каталог, Кол-во подъездов: 4, Имеется, I-511, Москва, Преображенское, Пассажирский лифт: 0, От метро: 1020, Восточный, да, Наименьшее кол-во этажей: 5, Наибольшее кол-во этажей: 5, Бульвар Рокоссовского, Кол-во помещений: 60, Кол-во нежилых помещений: 0, Год ввода в эксплуатацию: 1958, 3-комн, Кол-во жилых помещений: 60, Не присвоен, дом 2, корпус 9, нет, да, да, да, да, да, Имеется, Грузовых лифтов: 0, Год постройки: 1958, Открытое шоссе, 37.728568, 55.806373
Свяжитесь со мной на счет цены
10 дн.
T55S806373L37S728568T

На карте


Условия сделки

Источник


Старт продаж

Возможно заинтересует