Top.Mail.Ru

3-я Парковая ул., д. 61

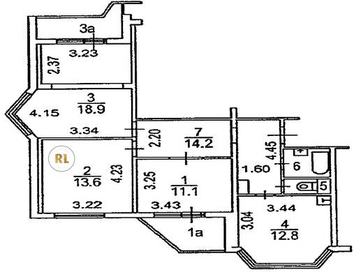
База каталог, Кол-во подъездов: 5, Отсутствует, П-44T, Москва, Северное Измайлово, Площадь парковки: 0, Пассажирский лифт: 5, От метро: 1350, Восточный, нет, Наименьшее кол-во этажей: 14, Наибольшее кол-во этажей: 14, Щёлковская, Кол-во помещений: 270, Кол-во нежилых помещений: 4, Год ввода в эксплуатацию: 2006, 3-комн, Кол-во жилых помещений: 266, Не присвоен, дом 61, нет, да, да, да, да, нет, Отсутствует, Грузовых лифтов: 5, Год постройки: 2006, 3-я Парковая улица, 37.781533, 55.806636
Свяжитесь со мной на счет цены
10 дн.
T55S806636L37S781533T

На карте


Условия сделки

Источник


Старт продаж

Возможно заинтересует