Top.Mail.Ru

улица Академика Бочвара, д. 2

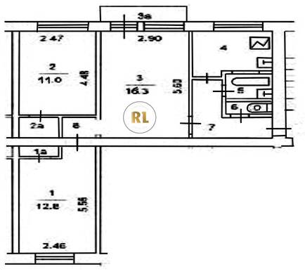
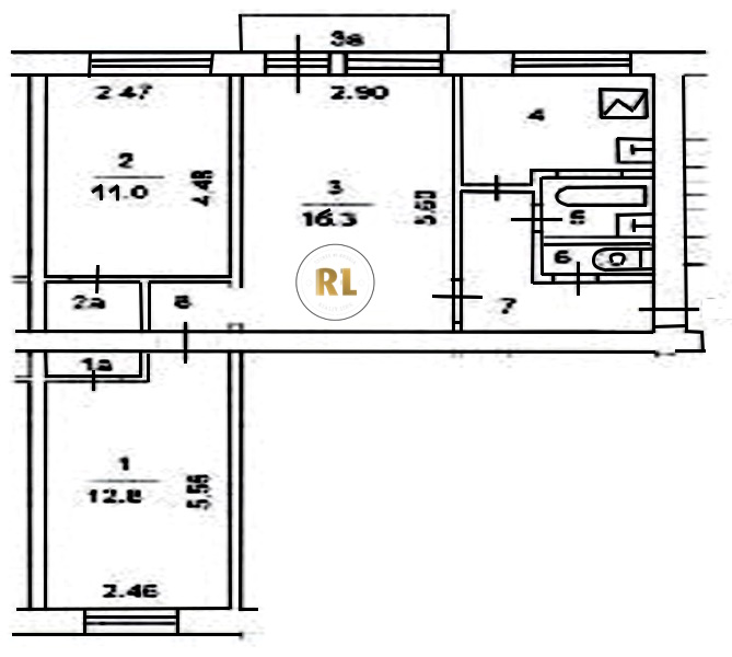
База каталог, Кол-во подъездов: 6, Отсутствует, I-511, Москва, Щукино, Площадь парковки: 0, Пассажирский лифт: 0, От метро: 284, Северо-Западный, нет, Наименьшее кол-во этажей: 5, Наибольшее кол-во этажей: 5, Щукинская, Кол-во помещений: 104, Кол-во нежилых помещений: 0, Год ввода в эксплуатацию: 1962, 3-комн, Кол-во жилых помещений: 104, Не присвоен, дом 2, да, да, да, да, да, да, Имеется, Грузовых лифтов: 0, Год постройки: 1962, улица Академика Бочвара, 37.462047, 55.807319
Свяжитесь со мной на счет цены
10 дн.
T55S807319L37S462047T

На карте


Условия сделки

Источник


Старт продаж

Возможно заинтересует