Top.Mail.Ru

Щелковский проезд, д. 4

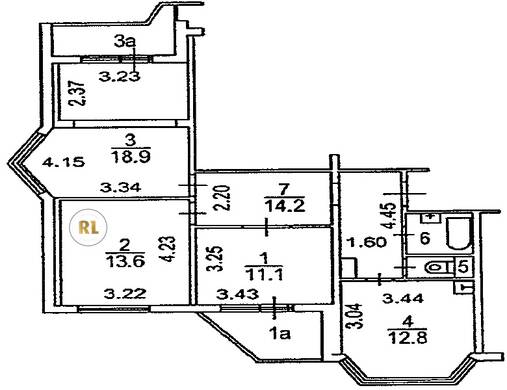
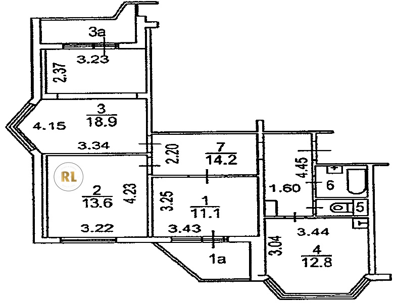
База каталог, Кол-во подъездов: 3, Отсутствует, П-44T, Москва, Северное Измайлово, Площадь парковки: 0, Пассажирский лифт: 3, От метро: 1420, Восточный, нет, Наименьшее кол-во этажей: 14, Наибольшее кол-во этажей: 14, Щёлковская, Кол-во помещений: 159, Кол-во нежилых помещений: 3, Год ввода в эксплуатацию: 2006, 3-комн, Кол-во жилых помещений: 156, Не присвоен, дом 4, нет, да, да, да, да, нет, Отсутствует, Грузовых лифтов: 3, Год постройки: 2006, Щелковский проезд, 37.778703, 55.807324
Свяжитесь со мной на счет цены
10 дн.
T55S807324L37S778703T

На карте


Условия сделки

Источник


Старт продаж

Возможно заинтересует