Top.Mail.Ru

Новощукинская ул., д. 3

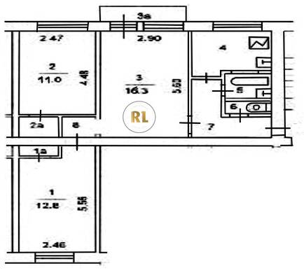
База каталог, Кол-во подъездов: 3, Имеется, I-511, Москва, Щукино, Площадь парковки: 0, Пассажирский лифт: 0, От метро: 390, Северо-Западный, нет, Наименьшее кол-во этажей: 5, Наибольшее кол-во этажей: 5, Щукинская, Кол-во помещений: 60, Кол-во нежилых помещений: 0, Год ввода в эксплуатацию: 1960, 3-комн, Кол-во жилых помещений: 60, Не присвоен, дом 3, да, да, да, да, да, да, Имеется, Грузовых лифтов: 0, Год постройки: 1960, Новощукинская улица, 37.459819, 55.807365
Свяжитесь со мной на счет цены
10 дн.
T55S807365L37S459819T

На карте


Условия сделки

Источник


Старт продаж

Возможно заинтересует