Top.Mail.Ru

улица Усиевича, д. 29, к. 1

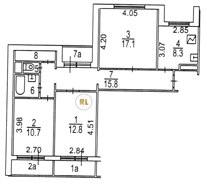
База каталог, Кол-во подъездов: 3, П-55, Москва, Аэропорт, Площадь парковки: 0, Пассажирский лифт: 3, От метро: 420, Северный, нет, Наименьшее кол-во этажей: 1, Наибольшее кол-во этажей: 14, Сокол, Кол-во помещений: 136, Кол-во нежилых помещений: 6, Год ввода в эксплуатацию: 2003, 3-комн, Кол-во жилых помещений: 130, Не присвоен, дом 29, корпус 1, да, да, да, да, да, да, Имеется, Грузовых лифтов: 3, Год постройки: 2003, улица Усиевича, 37.519009, 55.807526
Свяжитесь со мной на счет цены
10 дн.
T55S807526L37S519009T

На карте


Условия сделки

Источник


Старт продаж

Возможно заинтересует