Top.Mail.Ru

15-я Парковая ул., д. 46, к. 3

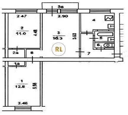
База каталог, Кол-во подъездов: 4, Отсутствует, I-511, Москва, Северное Измайлово, Пассажирский лифт: 0, От метро: 1660, Восточный, да, Наименьшее кол-во этажей: 5, Наибольшее кол-во этажей: 5, Щёлковская, Кол-во помещений: 80, Кол-во нежилых помещений: 0, Год ввода в эксплуатацию: 1964, 3-комн, Кол-во жилых помещений: 80, E, дом 46, корпус 3, нет, да, да, да, нет, нет, Имеется, Грузовых лифтов: 0, Год постройки: 1964, 15-я Парковая улица, 37.820663, 55.807865
Свяжитесь со мной на счет цены
10 дн.
T55S807865L37S820663T

На карте


Условия сделки

Источник


Старт продаж

Возможно заинтересует