Top.Mail.Ru

улица Исаковского, д. 26, к. 2

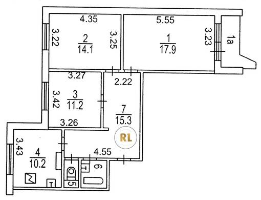
База каталог, Кол-во подъездов: 4, П-44/16, Москва, Строгино, Пассажирский лифт: 4, От метро: 1260, Северо-Западный, да, Наименьшее кол-во этажей: 16, Наибольшее кол-во этажей: 16, Строгино, Кол-во помещений: 261, Кол-во нежилых помещений: 6, Год ввода в эксплуатацию: 1980, 3-комн, Кол-во жилых помещений: 255, дом 26, корпус 2, нет, да, да, да, да, нет, Грузовых лифтов: 4, Год постройки: 1979, улица Исаковского, 37.415721, 55.808680
Свяжитесь со мной на счет цены
10 дн.
T55S808680L37S415721T

На карте


Условия сделки

Источник


Старт продаж

Возможно заинтересует