Top.Mail.Ru

Щелковское шоссе, д. 26, к. 3

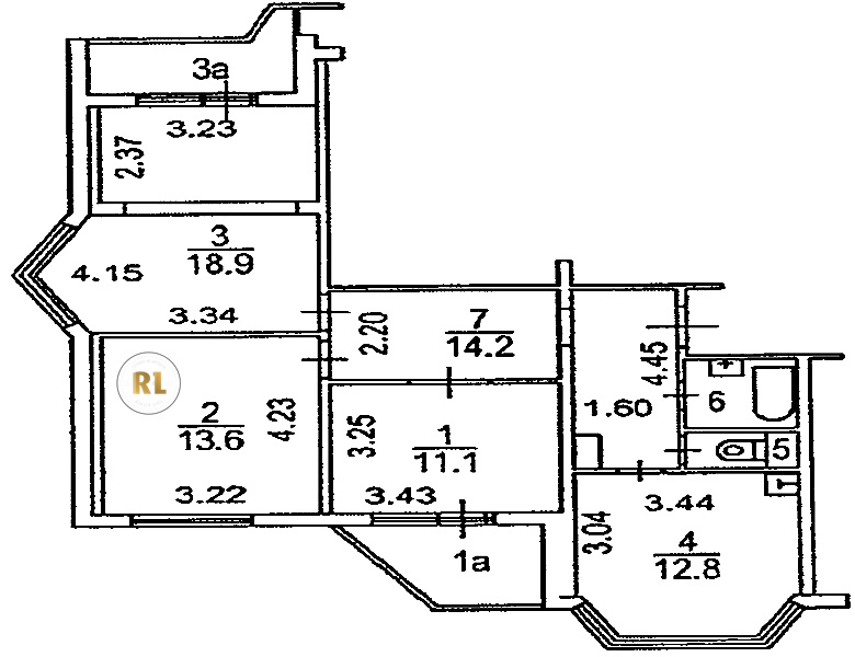
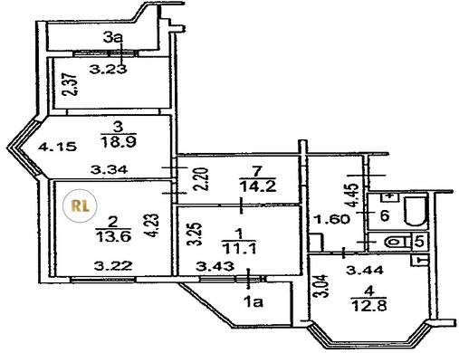
База каталог, Кол-во подъездов: 3, П-44T, Москва, Северное Измайлово, Площадь парковки: 0, Пассажирский лифт: 3, От метро: 1150, Восточный, нет, Наименьшее кол-во этажей: 17, Наибольшее кол-во этажей: 17, Щёлковская, Кол-во помещений: 201, Кол-во нежилых помещений: 2, Год ввода в эксплуатацию: 2000, 3-комн, Кол-во жилых помещений: 199, D, дом 26, корпус 3, нет, да, да, да, да, нет, Имеется, Грузовых лифтов: 3, Год постройки: 2000, Щелковское шоссе, 37.781021, 55.808811
Свяжитесь со мной на счет цены
10 дн.
T55S808811L37S781021T

На карте


Условия сделки

Источник


Старт продаж

Возможно заинтересует