Top.Mail.Ru

Щелковское шоссе, д. 26, к. 2

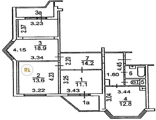
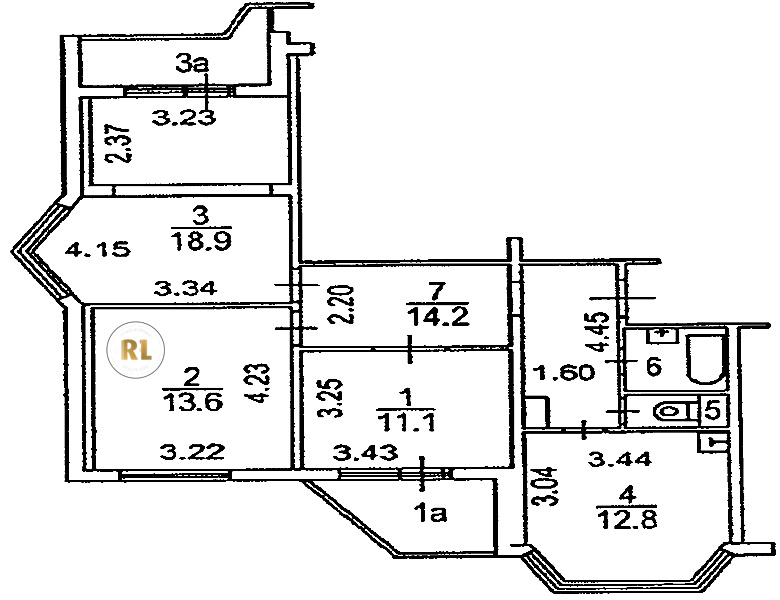
База каталог, Кол-во подъездов: 6, Имеется, П-44T, Москва, Северное Измайлово, Пассажирский лифт: 6, От метро: 1240, Восточный, да, Наименьшее кол-во этажей: 17, Наибольшее кол-во этажей: 17, Щёлковская, Кол-во помещений: 411, Кол-во нежилых помещений: 10, Год ввода в эксплуатацию: 2000, 3-комн, Кол-во жилых помещений: 401, дом 26, корпус 2, нет, да, да, да, да, нет, Имеется, Грузовых лифтов: 6, Год постройки: 2000, Щелковское шоссе, 37.779161, 55.808877
17 500 000 Р
10 дн.
T55S808877L37S779161T
+

На карте


Условия сделки

Источник


Старт продаж